【Half Board】OMAKASE Course

OMAKASE Course invites you on a culinary journey
that embodies the essence of Hida Takayama!
===========================
We are delighted to present our OMAKASE Course—
a meticulously crafted dining experience that celebrates the rich culinary heritage of Japan.
Each dish is thoughtfully prepared using the finest seasonal ingredients
sourced from the lush landscapes of Hida Takayama,
renowned for its pristine nature and exceptional local produce.
===========================
Among the local ingredients, HIDA WAGYU stands in a class of its own.
Our OMAKASE Course is carefully designed to allow you
to savor the rich flavors of HIDA WAGYU at its finest.
Immerse yourself in the bounty of HIDA
while enjoying dishes that reflect the beauty of the changing seasons.
◆◇◆◇◆◇◆◇◆◇◆◇◆◇◆◇◆◇◆◇◆◇◆◇◆◇◆
OMAKASE Course is a 8-course meal,
Starter, Appetizer, Soup, Sashimi, Fish, HIDA WAGYU about 3 oz, Rice, Dessert.
*Please note that our menu changes seasonally to reflect the freshest ingredients available.
*Children in lower elementary school or younger are not permitted to stay.
- Check-in
- 15:00 - 18:00 (Please let us know if your arrival time is after 18:00 (due to dinner preparation).)
- Check-out
- 11:00
- Meals
- Breakfast and dinner included
- Dinner
- [Dinner] Served at the annex [168(Iroha)-tei] Start time: 18:00 - / 19:00 - Please note that we may not be able to accommodate requests for changes in meal content, such as allergies, gluten-free, vegetarian, etc., or may charge extra for such changes. Please contact us in advance by e-mail.
- Breakfast
- [Breakfast] Served at the annex [168(Iroha)-tei] Start time: 8:00 - / 8:30 - / 9:00 - Please note that we may not be able to accommodate requests for changes in meal content, such as allergies, gluten-free, vegetarian, etc., or may charge extra for such changes. Please contact us in advance by e-mail.
- Payment method
- On-site payment or online credit card payment
- Reservation time limit
- From 00:00 215 days before date(s) of stay to 18:00 1 days before date(s) of stay.
- Deadline for changes to reservations
- 18:00 1 day(s) before date(s) of stay
- Deadline for cancellation
- 18:00 1 day(s) before date(s) of stay
Select the date(s) of stay by room vacancy status
Change room
-
- -TENRYO-Ichiryu Suite (100㎡)
-
- Price per person 57,200 JPY- (At 2 person(s) per room)
- Occupancy 2 to 5 persons
-
- -JINYA-Luxury Suite (75㎡)
-
- Price per person 52,800 JPY- (At 2 person(s) per room)
- Occupancy 2 to 4 persons
-
- Suite (85㎡)
-
- Price per person 49,500 JPY- (At 2 person(s) per room)
- Occupancy 2 to 5 persons
-
- Junior Suite (60㎡)
-
- Price per person 44,000 JPY- (At 2 person(s) per room)
- Occupancy 2 to 4 persons
-
- Executive (50㎡)
-
- Price per person 37,400 JPY- (At 2 person(s) per room)
- Occupancy 2 to 4 persons
-
- Standard (45㎡)
-
- Price per person 34,100 JPY- (At 2 person(s) per room)
- Occupancy 2 to 4 persons
-
- Standard Twin (40㎡)
-
- Price per person 31,900 JPY- (At 2 person(s) per room)
- Occupancy 2 person(s)
- Oct 2025
- Nov
- Dec
- Jan 2026
- Feb
- Mar
- Apr
Sun | Mon | Tue | Wed | Thu | Fri | Sat |
---|
My phone number is +81 577 32 0448
Note: Prices include consumption tax.
- Please inquire about this plan by phone
-
Telephone no. Machiyado Ichiryu +81 577 32 0448 Homepage https://www.machiyado-ichiryu.com/
- This plan is sold out.
- Information on the selected room(s)
-
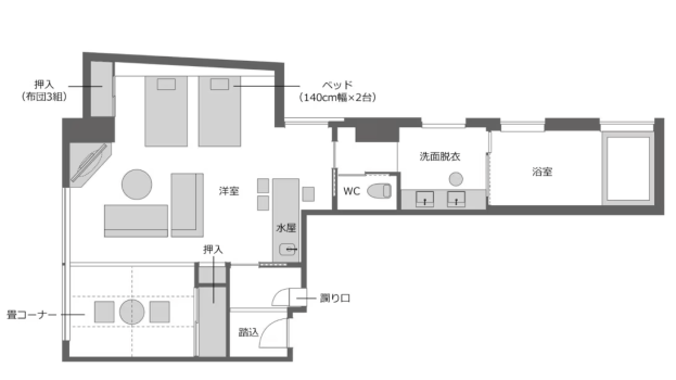
[303 YOROKU] You can relax wherever you like, on the sofa, in the tatami space, or at the mini-bar table. - Suite (85㎡)
-
- Smoking/Non-smoking
- Non-smoking
- Room size
- 80.00 m2
- Wi-Fi
- Yes
- Toilet
- Warm-water bidet toilet
- Shower / Bath
- Yes
- Air purifier
- Yes
- Refrigerator
- Yes
Enjoy the perfect blend of luxury and convenience in our suite. Soak in your private semi-open-air bath inside your room, choose your favorite yukatas from a many of colorful selection, and unwind on a plush sofa or a luxurious bed.
Complimentary beverages, including sparkling wine, are provided, along with free parking and a shuttle to Takayama Station.
Guests also have exclusive access to a private onsen outside your room, making your stay truly unforgettable.■Room benefits■
[1]Enjoy wearing a colorful yukata,stroll through the charming streets of Takayama
[2]Relax in the private semi-open-air bath inside your room
[3]Premium Lounge(Coffee, juice, light meals, and even alcohol are offered here for free.)
[4]Enjoy complimentary items from the mini-bar(including sparkling wine)
[5]Free shuttle service to Takayama Station
[6]Free private onsen outside your room (45minutes)
[7]Free parking space【Capacity】 2-5 persons
【Floor】 3-4F
【Room size】 80㎡ twin + 6 tatami mats
【Bedding】 140cm wide bed x 2, Japanese bedding(Futon) x 3
【Bath room】 With half-open-air bath
Thank you very much for your continued patronage of Machi-Yado Ichiryu.
In Takayama City, Gifu Prefecture, an accommodation tax will be introduced as part of efforts to create a sustainable community.
The following accommodation tax will be levied on guests staying in Takayama City from October 1, 2025.
Tax amount based on accommodation fees (per adult per night)
・Less than 10,000 yen...100 yen
• 10,000 yen or more but less than 30,000 yen…200 yen
• 30,000 yen or more…300 yen
【Reference】 Regarding accommodation fees
1) Items included in the accommodation fee: Basic accommodation fee, service charges included in the basic accommodation fee
2) Items not included in the accommodation fee: Amounts equivalent to consumption tax, etc. (consumption tax, local consumption tax, hot spring tax, etc.), fees for services other than accommodation (meals, telephone, parking, meeting room usage fees, etc.)
We will continue to strive to improve our services so that you can enjoy a comfortable stay.
We kindly ask for your understanding and cooperation.