


ご希望の宿泊プランをお選びください。
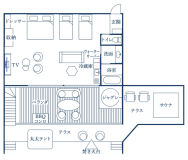
お部屋一覧
- お部屋ごとの空室状況を表示しています。ご希望の宿泊日をお選びください。
-
※プランごとに予約受付可能日時がございます。[ ○日前の○時まで等 ]
下記一覧で空室があっても、インターネットではご予約いただけない場合もございますのでご了承ください
- …空室あり
- …残りわずか
- …満室
- …お電話にてお問い合わせください: 080-3610-8084
- …受付できません
- 禁煙
- Wi-Fiあり
- トイレあり
- シャワー/お風呂あり
- アルコール消毒液あり
- 空気清浄機あり
- 冷蔵庫あり
- バルコニーあり